封閉式插板閥
產品概況
產品型號:CZ( 7) 49X - 0.5(2.5)QCZ( 7) 43X - 0.5 ( 2.5)
公稱通徑:DN800~2600mm
公稱壓力:PN0.1~0.4MPa
驅動方式:氣動、電動、液動、電液動
適用溫度:120℃ 200℃ 300℃ 450℃
適用介質:煤氣及有毒
封閉式插板閥產品結構特點:
1、閥門采用全封閉結構,操作時介質不會向外泄漏,操作安全環境污染。
2、閥體采用整體框架式結構,剛性好,能承受高的介質壓力。
3、密封副部位采用不銹鋼與橡膠密封,密封圈為雙凸型密封可靠。
4、密封圈裝在閥板上,便于更換。
5、伸縮體與固定套之間采用多層波紋管連接,適用壽命長,密封更可靠,波紋管內安裝填料式耐磨套,粉塵不進入波紋管內。
6、夾緊機構采用閉環式多點夾緊,同步性好。
7、特制的控桿和頂輪機構,確保閥板運行無摩擦。
8、設有氮氣吹掃孔,以便吹掃閥座和傳動部位積灰,開啟靈活。
9、底部設有排水管接口,將閥箱內積水排出。
10、夾緊、松開和閥板行走采用全電動驅動。操作方便,性能穩定,電裝帶手動機構,手、電動可實現無憂動切換。
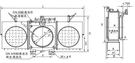
封閉式插板閥產品主要尺寸:

|
DN |
L |
D |
D1 |
b |
n-d |
L1 |
H |
H1 |
B |
B1 |
A |
C |
C1 |
C2 |
e1 |
e2 |
n1-d1 |
|
800 |
3900 |
975 |
920 |
26 |
24-30 |
1545 |
1970 |
750 |
1070 |
650 |
1150 |
950 |
350 |
300 |
250 |
220 |
12-32 |
|
900 |
4400 |
1075 |
1020 |
28 |
24-30 |
2200 |
2028 |
890 |
1100 |
700 |
1150 |
950 |
350 |
300 |
250 |
220 |
12-32 |
|
1000 |
4735 |
1175 |
1120 |
30 |
28-30 |
2368 |
2230 |
960 |
1100 |
700 |
1250 |
950 |
350 |
300 |
250 |
220 |
12-32 |
|
1200 |
6214 |
1375 |
1320 |
30 |
32-30 |
3105 |
2570 |
1060 |
1100 |
700 |
1450 |
950 |
300 |
300 |
250 |
220 |
12-32 |
|
1400 |
6915 |
1575 |
1520 |
30 |
36-30 |
3400 |
2850 |
1180 |
1200 |
800 |
1450 |
950 |
350 |
300 |
250 |
220 |
12-32 |
|
1600 |
7630 |
1790 |
1730 |
30 |
40-30 |
3600 |
3150 |
1350 |
1200 |
800 |
1150 |
920 |
250 |
720 |
475 |
630 |
16-26 |
|
1800 |
8068 |
1990 |
1930 |
30 |
44-30 |
3700 |
3565 |
1580 |
1400 |
950 |
1150 |
920 |
250 |
720 |
475 |
630 |
16-26 |
|
2000 |
8718 |
2190 |
2130 |
30 |
48-30 |
3855 |
3825 |
1720 |
1500 |
950 |
1924 |
1044 |
522 |
720 |
280 |
512 |
16-26 |
|
2200 |
9320 |
2405 |
2430 |
32 |
52-33 |
4285 |
4150 |
1820 |
1550 |
950 |
2030 |
1044 |
522 |
810 |
280 |
606 |
16-26 |
|
2400 |
10000 |
2605 |
2540 |
32 |
56-33 |
4615 |
4660 |
1960 |
1550 |
1016 |
2130 |
1130 |
565 |
820 |
300 |
710 |
16-26 |
|
2600 |
10700 |
2805 |
2740 |
34 |
60-33 |
5100 |
5150 |
2050 |
1550 |
1016 |
2130 |
1130 |
565 |
820 |
300 |
710 |
16-26 |
溫馨提示:
本文中所有文字、數據、圖片均只適用于參考。需要查看更多的封閉式插板閥性能參數、結構尺寸參數、價格等詳情,或要求高質量印刷樣本,請聯系我們。